![]() |
研究会が定義した「終の棲家」は暮らすためのソフトと居住するためのハードの両面が 安心感と信頼感で交互に補完されていることが不可欠な条件なのです。言い換えますと精神的には 安心と安定を、物理的には間取りや素材の丈夫さなど経年変化に耐え得る品質と信頼性が求められるのです。 また、住居を建てる行為は一世一代の大仕事なので若く精神的にも肉体的にも 経済的にも無理が効く状況であっても一生に何度も建替えることは無理・無駄であります。 中年や熟年になればなおさらです。だとすると自ずと流行りや流れに左右されることのない 「終の棲家」の思想を追求しておけば、 次の代の方々へ安心感と安定性、そして丈夫で長持ちの耐久性と共に 寿命の長い住居として引き継げるのであります。 ご自分の代で次代に引き継ぐ暮らしの基盤 を整備しておくのも人生をより豊かに 積極的により愉しく過ごせる要素だと思いますが如何でしょう。 研究会が到達した暮らしの理念と住居の原点をより正確に具体化した <「終の棲家」を暮らす>シリーズとして推奨する5つのプランを図面化しています。 プランの形状は各々異なりますが、その基本の理念を理解された会員の方々が お気に入りのプランを選定し、実際に建築され今日も 各自各様にイキイキと暮らしておいでです。 |
| 推奨プラン |
| <「終の棲家」を暮らす>シリーズとして5つのプランを推奨しています。ご自分の暮らしの先行きを想像し未来の 予想に重ねて検討してみてください。きっとお気に入りのプランが見つかるはずです。 さて、始めの3案<原点の家・39坪タイプ><原点の家・34坪タイプ><原点の家・27坪タイプ>は吉村さんの原 設計プランを正しく踏襲しています。その次の2案は各々<日本の民家・24坪タイプ><南仏の民家・23坪タイプ>として「終の棲家」の理念と原点を正確に踏襲しながら外観イメージや間取、屋根材や壁材などにアレンジを加えました。各プランとも外観・平面図、構造体、延床面積を記載していますので参考にご覧いただきたく思います。 また、屋根や外装・内装の色や素材を自分流にアレンジすることにより個性が際立つご自分だけの住居を演出できることもご理解ください。 | |
| ※各プランとも間取りをベースに外観・内装・材質の変更は可能です。詳細はご相談ください。 ※2025年度には省エネ基準などの法規制が変更制定される予定です。 |
|
| ||||||||||||||||||||||||||||||||||||||||||||||||||||||||||||||||||||||||||||||||||
| *A.原点の家・39坪タイプ |
![]() |
|
■吉村邸外観 |
![]() |
| ■吉村邸内観 |
| このプランの原点は吉村さんの父上がW.M.ヴォーリズ設計事務所で主任技師を務められておられた時に設計・ 建設されたものであります。阪神淡路大震災で基礎に被害を受けたため間取りはそのままに耐震強度を高めご自身で再設計・再建築なさいました。 広めの敷地に建てられており、自然に向けて大きく門戸を開いた設計のため、光や風や雨、草木や花、そして鳥 や昆虫など都会にあっても自然を感じやすく、人が人として自然の一部として共に暮らせるのが魅力です。91歳で天寿を全うされるまで元気に過ごしておられた実在のプランです。 総てのプランは原設計を正確に踏襲した設計でまさに「終の棲家」の理念が高度に濃縮されています。使用され る部材は杉材で1階~2階の床材は厚さ6cm×幅12cmの角材で壁と天井は3cm×13.5cmで構成され、外壁は漆 喰を塗りなかなかワイルドな仕上がりであります。 勿論、仕上げ材料によりイメージは大きく変わりますが一番のお勧めは原案の通りに… です。 |
![]() |
![]() |
| ■立面図・南面 | ■立面図・東面 |
![]() |
![]() |
| ■平面図・1F | ■平面図・2F |
| ・木造軸組工法2階建・モデュール980mm・延床面積129.66m2(39.23坪) ・暮らし方研究会出版の「-今、本質のライフスタイルを求めて-やさしさを生きる…」を参照ください。 |
|
| |||||||||||||||||||||||||||||||||||||||||||||||||||||||||||||||
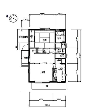
| *B.原点の家・34坪タイプ |
![]() |
| ■外観写真 |
| このプランは先の「原点の家・39坪タイプ」より14.39m2(4.36坪)小さく設計されました。 この「原点の家・34坪タイプ」は2016年の年頭に発表したところ、すぐさま理念に共感された若いご夫妻と3人のお子様の住居として選択され、2017年2月に無事竣工、ご家族5人が健康で明るくイキイキと暮らしておられ、現在ではご近所のお子さんたちも集う楽しい雰囲気の住居となりました。平屋ベースの2階建、シンプルな間取り、構造現しの内装、杉材の香りなどが評判のようです。 但し、この設計プランの原型は安定感が強い4間×4.5間(6畳を3室×2列、計6室にした)のほぼ正方形でしたが、土地形状に合わせたため3.5間×5間の少し細長い平面形状にしました。更に南面に隣家があるので採光のための天窓を設ける、LDと寝室を入れ替えるなど原型プランにはないが適切なアレンジが加えられました。30代で建てた「終の棲家」の好例と言えます。 |
![]() |
![]() |
| ■平面図・1F | ■平面図・2F |
| ・木造軸組工法2階建・延床面積115.27m2(34.87坪) ・大阪府島本町 季刊「住む。」2019年夏号の取材記事を参照ください。 |
|
| ||||||||||||||||||||||||||||||||||||||||||||||||||
| *C.原点の家・27坪タイプ |
![]() |
| ■外観写真 |
| このプランは(原点の家シリーズ)で一番狭小の27坪タイプとしてアレンジされ設計されました。基本的にはプラン1の(原点の家・39坪タイプ)とプラン2の(原点の家・34坪タイプ)と面積以外の変更箇所はありません。 因みにプラン2の(原点の家・34坪タイプ)と比較しますと24.55m2(7.43坪)少なくなっています。 老後を楽しむ住居として建築されましたが、施主のご希望で外壁を天然木からフランス漆喰に変更されています。イメージは英国の湖水地方の民家に源を発しています。内部は無垢の木材がふんだんに使われ、立地に合わせて 断熱材は使わず大屋根に通気垂木を使用して暑さ対策を講じています。水回りを除く総ての窓は木製サッシにペアガラスが使用され、薪ストーブと天井扇が装備されました。里山や海岸など立地を選ばずに風景と同化する形状であります。 |
![]() |
![]() |
| ■平面図・1F | ■平面図・2F |
| ・木造軸組工法2階建・延床面積90.72m2(27.44坪) ・参考事例(大阪府豊能郡)研究会HP先輩会員が暮らす住居「大人の暮らしこれから」を参照ください。 |
|
| |||||||||||||||||||||||||||||||||||||
| *D.日本の民家・24坪タイプ |
![]() |
| ■外観写真 |
| 田舎を訪れ民家の佇まいを目にすると何故か懐かしさがこみ上げて心が和みます。そんな日本の農家をモチーフにしています。民家は「常民の家」として主に農民が暮らす家… の意味があります。古来より日本の民家は質素で素朴でありますが、平家建てで寄棟の大らかで安定感溢れる屋根勾配と外壁の直線が絶妙のバランス感覚を醸し出す形態が特徴的であります。 仕事をリタイヤされて立地が地方であっても都会であっても素の生活に戻りたいご夫妻が楽しく暮らせるよう、平屋という贅沢を活かしました。先人の言葉にもある「住居は丈夫で質実剛健、小さく建てて大きく暮らす…」 との理念に基づきながら広さも機能も十分でここで育ったお子様が独立してお孫さんを故郷の実家として連れて帰省する姿が目に浮かびます。そんな想いで企画設計されました。何代にも渡り住み継ぎ心の拠りどころとなる住居です。 |
![]() |
| ■平面図 |
![]() |
| ■外観パース |
| ・木造軸組工法・延床面積79.50m2(24.04坪) ・参考事例(三重県名張市)研究会HP先輩会員が暮らす住居 「熟年向け住宅プラン」を参照ください。 | |
| 終の棲家・訪問記「家は引き算、庭は足し算」 | |
|
|
| *E.南仏の民家・23坪タイプ |
![]() |
| ■外観パース |
| ピーター・メイル著の「南仏プロバンスの12カ月」など国内でも耳目を集めた地中海を望む南仏プロバンス地方のワインセラー(地下室)付の農家をモチーフにしています。陽光が溢れ農作物が豊富であったため古来よりフランス北部や北欧から避寒と夏のバカンスにと多くの人々が長期滞在する人気のエリアです。葡萄・ラベンダー・ひまわり畑に囲まれた農家はのんびりゆったりと暮らしたくなるような情景です。 外観は緩やかな屋根勾配をフランス瓦で覆い、質感満点のフランス漆喰を纏った100年壁に囲まれ、風除室を兼ねた玄関アプローチ、木製雨戸、鉄製面格子、そして屋根に突き出た暖炉の煙突が外観を強く印象付けています。 南仏に憧れておられる方、明るい雰囲気がお好きな方、洋風がお好きな方にお勧めです。ご希望により地下室の追加工事も可能です。子々孫々まで強く印象に残る住居です。 |
![]() |
| ■平面図 |
| ・コンクリートブロック造・延床面積76.44m2(23.12坪) |
|
|
| まとめ |
| さて、少し冗談めいて恐縮ですが、研究会の勉強会で動物の「終の棲家」は? の話題になりました。結論として燕が最有力候補に挙がりました。燕は泥・藁・枯草で巣を作り、1回5個ほどの卵を産み、2週間の抱卵の後、3週間で巣立ちます。その後日本で過ごし季節が巡りますと遥か2,000~5,000キロも離れたフィリピン・ベトナム・マレーシヤ・インドネシアに旅立ちます。一生を連れ添うことでも有名ですが、元の巣に雄が早く戻った場合はほぼ確実に元の雌と一緒になるそうです。巣立った子供が元の巣に戻ることはあり得ないのですが、小さな巣を修復しながら一生の間に何世代も子供を育て成人させるのです。極小の巣、何代にも渡り使用、子育ての繰り返し、まさに人における「終の棲家」を絵に描いたような燕さんです。まだまだアナグマさんやコウノトリとかワシやカッコウなどの候補が上がりましたが、行動力と毎年決まった巣ということで燕さんの優勝でした。 他のジャンルにおいても例えば山小屋やキャンピングカー、ヨットやナローボートなど、そこで暮らしておられる方々も沢山おられます。発想次第でその狭さや小ささに興味をそそられることが多々あります。 では人間にとっての巣(住居)の大きさはといいますと、吉村さんによると両親と子供二人、計4名なら30坪で必要十分とのことでありました。あまり大きいのも無駄であり、マンションでも30坪超えに暮らす人は少数とのことであります。 更に、光・風・水・土・木などに四季の移ろいを感じ、住居の中を自然が通ってくれて五感が反応する暮らし。完璧な機能性より不便さを楽しみ、足りるを知る暮らしの方が楽しめる… とのことです。 上を見れば際限のない住居選びですがご自分にとっての正しい価値観と正しい選択眼で間違いのない「終の棲家」を選択されることを心より願っております。 |
| ※追加資料:「終の棲家」老建築家自邸の四季(YouTube動画) 協力:暮らし方研究会、写真:暮らし方研究会顧問 細川和昭、制作:暮らし方研究会顧問 新井律子 老建築家 吉村康雄さんが実際に暮らしておられた住居を中心に自邸の庭の四季を写真に収めました。 「終の棲家」を暮らしこなした達人の気分で雰囲気を楽しんでください。 |
| 昨今の世界的な動向は自然環境の良好なる状態維持・エネルギーの安定供給・食料・資材の必要量の供給確保など国の存続と安全保障に関わる状況が複雑に絡み合っているといえます。状況を理解し判断するにも複雑すぎて理解が困難な点も多々生じています。 そこで暮らし方研究会が開設している「無料初期相談」のシステムをフルに活用いただき合理的かつ的確な判断を早めにされることをお勧めする次第であります。 |
|
|
| E-Mail:ask@kurashikata.gr.jp |
| フリーダイヤル:0120- |
| Copyright(C) 暮らし方研究会.AllRightsReserved. |